Новинка!
Из каталога застройщика
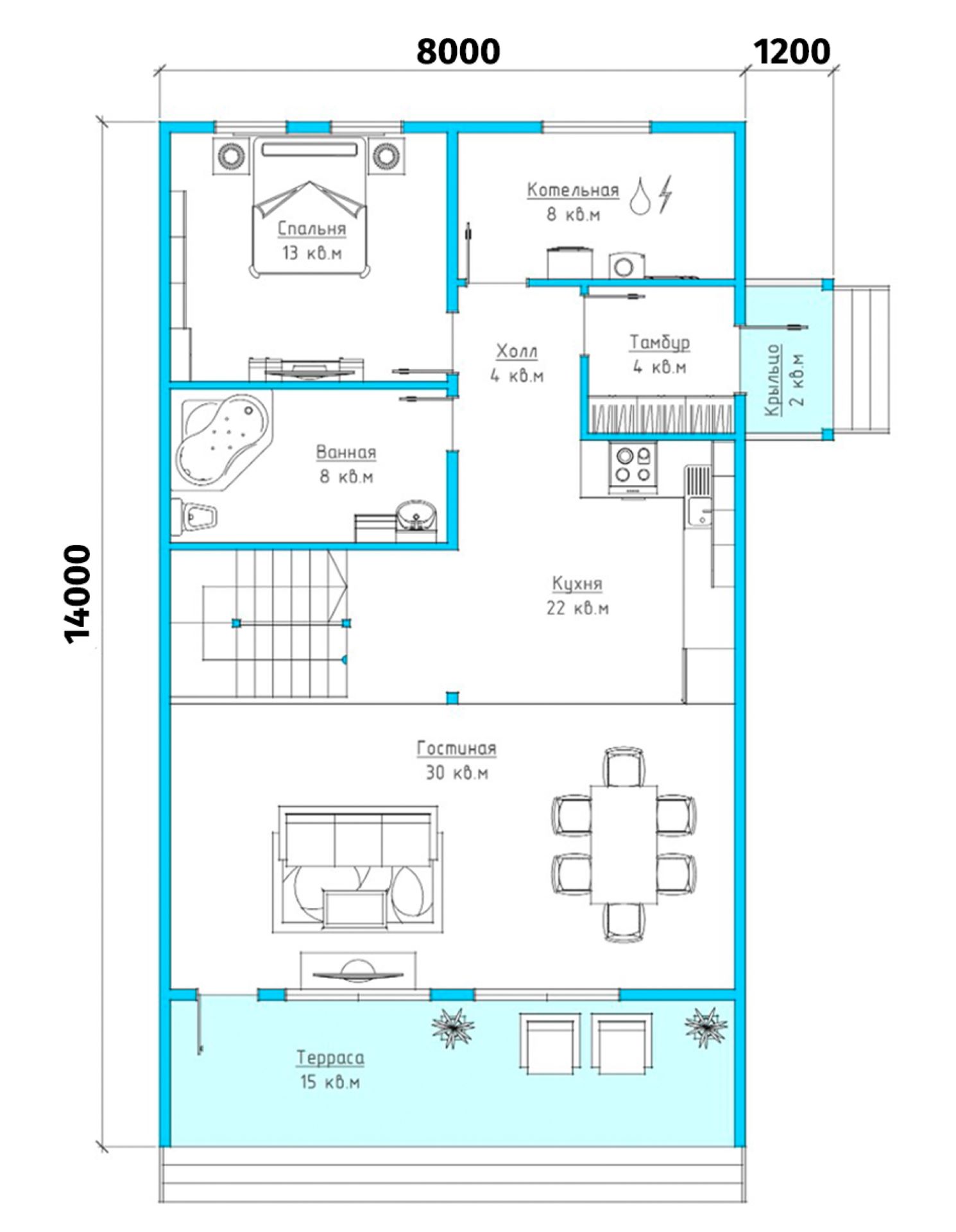
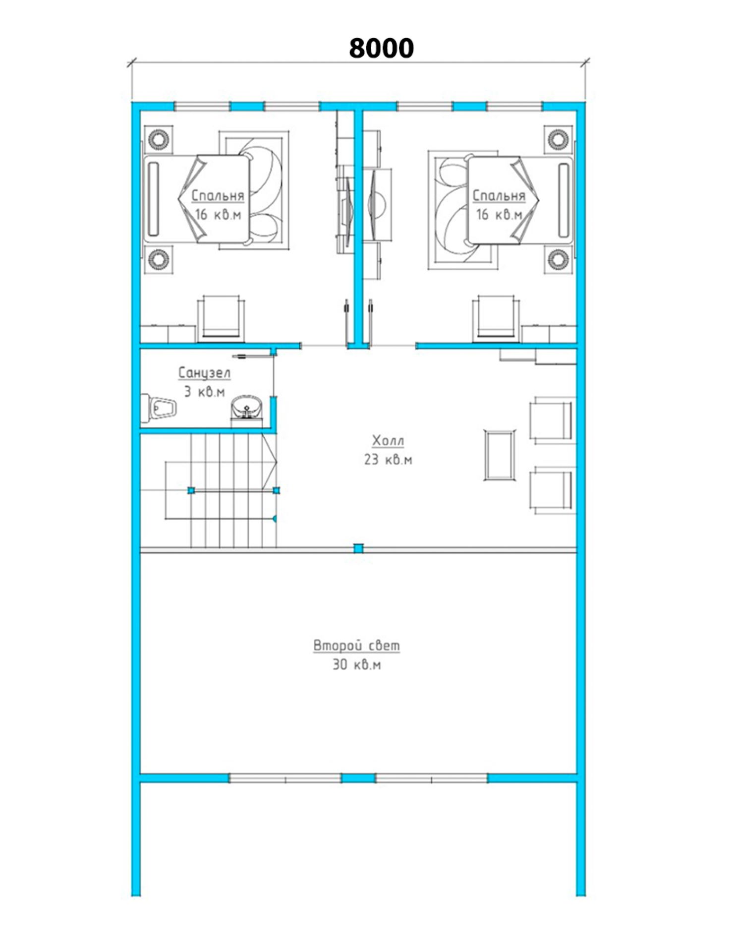
Дом каркасный Барнхаус-2 8*14 м площадью 211 м2 с террасой 15 м2
Проект Барн-2
Общая площадь: 211 м2;
Размер застройки: 8*14 м;
Этажи: 2;
Стены: каркас 150/200 мм;
Утеплитель: мин.вата Knauf плита — 150/200 мм;
Гидроизоляция: мембрана;
Фасад: имитация бруса/планкен/фасадные панели/искусственный камень/фиброцементный сайдинг;
Кровля: металлочерепица/гибкая черепица/фальцевая;
Вентиляция: естественная; санузла и кухня в стенах/через кровлю;
Количество комнат: 4;
Количество спален: 3;
Количество санузлов: 2;
Котельная-прачечная: 8 м2.











