Новинка!
Из каталога застройщика
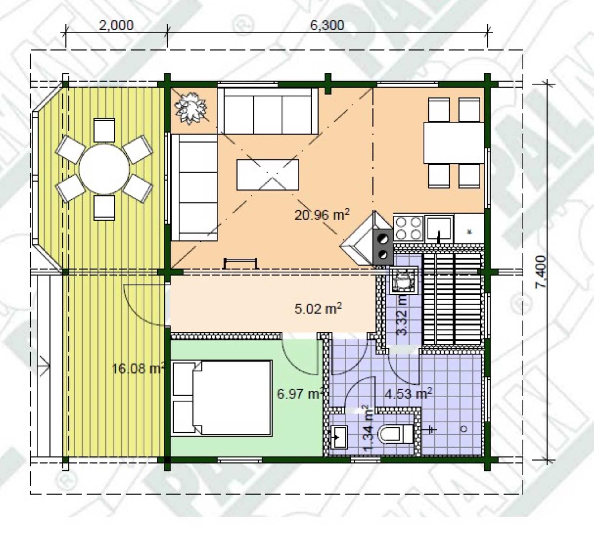
Дом из клееного бруса Пино 7,4*8,3 м площадью 63 м2 с террасой 16 м2
Проект Пино
Общая площадь: 63 м2;
Размер застройки: 7,4*8,3 м;
Этажи: 2;
Стены: клееный брус или каркас 150/200 мм;
Утеплитель для каркасного варианта: мин.вата Knauf плита — 150/200 мм;
Гидроизоляция: мембрана;
Фасад для каркасного варианта: имитация бруса/планкен/фасадные панели/искусственный камень/фиброцементный сайдинг;
Кровля: металлочерепица/гибкая черепица/фальцевая;
Вентиляция: естественная; санузла и кухня в стенах/через кровлю;
Количество комнат: 3;
Количество спален: 1;
Количество санузлов: 1.









